Yaklaşık 19 bin 340 metrekare büyüklüğündeki, Turizm Tesisi imarlı taşınmaz; Çevre, Şehircilik ve İklim Değişikliği Bakanlığı tarafından kentsel dönüşüm mevzuatı gerekçe gösterilerek, yapılaşma koşulları korunmak suretiyle Ticaret İmarına dönüştürüldü. Plan, 25.12.2025’te askıya çıkarıldı, 09.01.2026’da itirazsız şekilde kesinleşti.
Aynı Plan 2021’de Reddedilmişti
Dikkat çeken nokta şu:
Aynı parsele ilişkin benzer nitelikteki 1/5000 ölçekli Nazım İmar Planı değişikliği, Aydın Büyükşehir Belediye Meclisi tarafından 16.09.2021 tarih ve 309 sayılı karar ile, “oteller bölgesinde ticari fonksiyonlara yer verilmemesi gerektiği” gerekçesiyle reddedilmişti. Yani Aydın Büyükşehir Belediyesi’nin kendi meclisi, bu alanın ticari kullanıma açılmasını şehircilik ilkelerine aykırı bulmuştu.
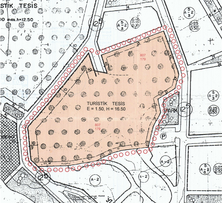
Turizm Alanı Ticaret Alanına Dönüştürüldü
Plan değişikliğiyle birlikte;
* Turistik Tesis olan kullanım kararı Ticaret fonksiyonuna çevrildi
* Emsal (E): 1,50, yükseklik (H): 16,50 m korunurken
* TAKS %30’dan %40’a çıkarıldı
Bu değişiklikle parseldeki yapılaşma yoğunluğu fiilen artırıldı. Ticaret kullanımının doğası gereği, konaklamaya kıyasla çok daha fazla günlük ziyaretçi, çalışan, servis ve araç trafiği oluşturacağı ifade ediliyor. Ancak parselin cephe aldığı 12,5 metrelik yol genişliği, oluşacak trafik, servis ve otopark ihtiyacını karşılamaktan uzak. Uzmanlara göre bu durum, trafik güvenliği, erişilebilirlik ve yaşam kalitesi açısından ciddi riskler barındırıyor.
Kıyıya 30–40 Metre Mesafede Ticaret Israrı
Planlama alanı, Kuşadası’nda turizm tesislerinin ve otellerin yoğunlaştığı, kıyı çizgisine 30–40 metre mesafedeki bir bölgede yer alıyor. Bu nedenle kullanım kararlarının;
* turizm sürekliliği,
* yaya kullanımı,
* kıyı silueti,
* bölgenin karakteri göz önünde bulundurularak alınması gerektiği vurgulanıyor.
Eleştirilere göre, ticaret fonksiyonu bu yönleriyle turizm bütünlüğünü zedeliyor ve Kuşadası’nın turizm kimliğine zarar veriyor.
HANİ ÖZLEM HANIM KUŞADASI’NDA İMAR RANTINA GEÇİT YOK DİYORDU
“İmar Rantına Geçit Yok” Afişleri, Bu Plan İçin Neden Geçerli Olmadı?
Tartışmanın odağındaki asıl soru ise siyasi:
Aydın genelinde — merkez dahil 17 ilçede — billboardlara “Kuşadası’nda imar rantına geçit yok” sloganlarını astıran Özlem Çerçioğlu’nun,
Kuşadası tarihinin en büyük rantlarından biri olarak nitelendirilen bu plan değişikliği karşısında neden sessiz kaldığı merak ediliyor. Ne Aydın Büyükşehir Belediyesi’nden, ne de Başkan Özlem Çerçioğlu’ndan, askı sürecinde tek bir itiraz ya da kamuoyuna açıklama gelmedi. Eleştiriler Sert:
“Rant Karşıtlığı Söylemde mi Kaldı?”
Kamuoyunda dile getirilen eleştirilerde;
2021’de CHP’li bir belediye meclisinin reddettiği planın, bugün Bakanlık eliyle geçirilmesine sessiz kalınmasının, “imar rantına karşıyız” söylemiyle açık bir çelişki oluşturduğu ifade ediliyor.
Bazı çevreler, bu sessizliğin yaklaşık 1 milyar liralık rant iddiasıyla anılan plan değişikliği karşısında siyasi bir tercihe işaret ettiğini savunuyor.
Soru Net, Cevap Bekleniyor
Ortada kamuoyunun yanıt beklediği net sorular var:
* 2021’de reddedilen bu plan, bugün neden sorgulanmadı?
* Turizm alanında ticaret ısrarının kamu yararı nerede?
* “İmar rantına geçit yok” söylemi bu parsel için neden işletilmedi?
Kuşadası’nın geleceğini doğrudan ilgilendiren bu plan değişikliğiyle ilgili sessizlik, tartışmaları daha da büyütüyor.
PLAN DEĞİŞİKLİĞİ ÖNCESİ 1/5000 ÖLÇEKLİ NAZIM İMAR PLANI

PLAN DEĞİŞİKLİĞİ SONRASI (MEVCUT) 1/5000 ÖLÇEKLİ NAZIM İMAR PLANI

PLAN DEĞİŞİKLİĞİ ÖNCESİ 1/1000 ÖLÇEKLİ UYGULAMA İMAR PLANI

PLAN DEĞİŞİKLİĞİ SONRASI (MEVCUT) 1/1000 ÖLÇEKLİ UYGULAMA İMAR PLANI

PLANLAMA ALANI UYDU GÖRÜNTÜSÜ





